手に届く価格の、
次世代型
コンクリート住宅

ISSUE

こんなお悩みありませんか?

RC住宅を建てたいけど値段が高く予算が合わない

本当はRC住宅がいいけど、値段的に木造しか建てられない

自由設計や間取りの自由度も捨てがたいが、RC住宅の性能に魅力を感じる

「コンクリートの家」は手に届く価格の
次世代型コンクリート住宅。

RC住宅と木造住宅に代わる
第三の選択肢をご提供いたします!

MERIT

「コンクリートの家」を建てると得られるメリット

RC住宅以上の住宅性能

「コンクリートの家」とは住宅の壁式プレキャストコンクリート工法(WPC工法)により、地震や台風・火事などの災害にも圧倒的な強さを発揮します。
安心・安全な構造にプラスして、快適な住み良さとデザイン性を加え「より愛着のある家」を実現しています。

木造住宅並みのコスト

工期を大幅に短縮し、独自の資材供給ルートを確立したことで、低コストを実現しています。「コンクリートの家」は、高品質な理想の住まいを現実的な価格でご提供いたします。

LINE UP

住宅ラインナップ

scroll >>

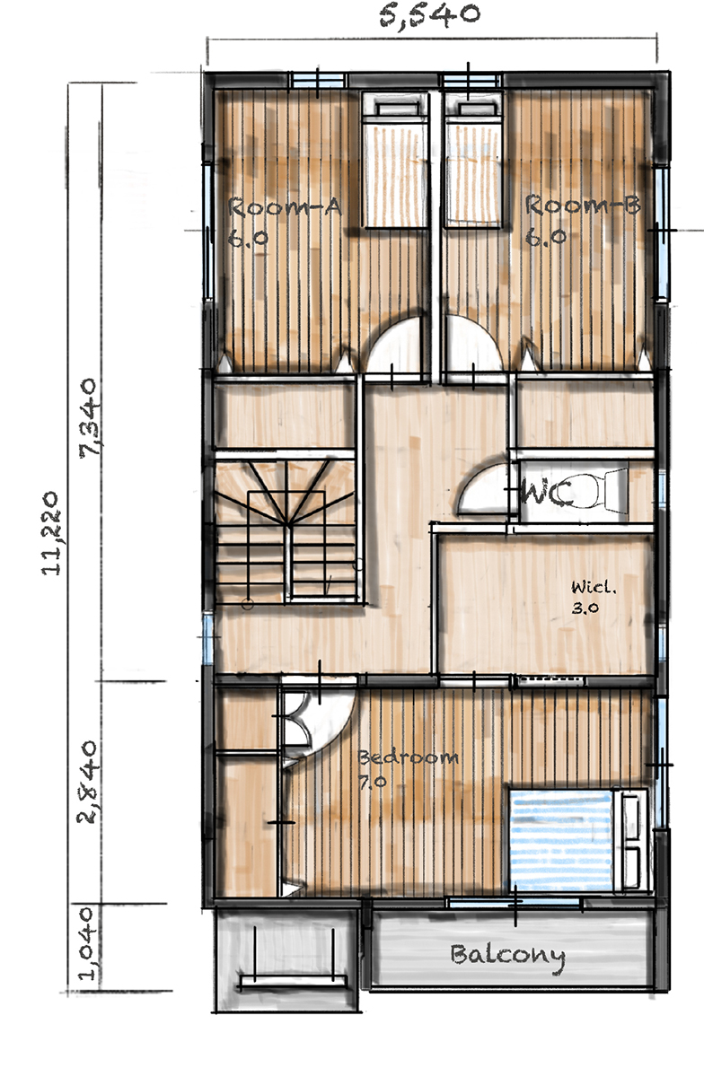
プランA

価格 2,360 万円 (税込)~

間取りタイプ:
3LDK
1階床面積:
44.40㎡
2階床面積:
40,66㎡
合計面積:
85.06㎡ (25.73坪)
※表示金額は本体工事価格(税込)
※2025年現在特別価格適用
※本体工事以外(その他付帯工事)は別途費用となります。

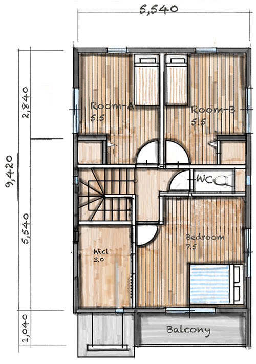
プランB

価格 2,690 万円 (税込)~

間取りタイプ:
3LDK
1階床面積:
50.16㎡
2階床面積:
46.42㎡
合計面積:
96.58㎡ (29.21坪)
※表示金額は本体工事価格(税込)
※2025年現在特別価格適用
※本体工事以外(その他付帯工事)は別途費用となります。

プランC

価格 2,640 万円 (税込)~

間取りタイプ:
3LDK
1階床面積:
50.16㎡
2階床面積:
50.16㎡
合計面積:
100.32㎡ (30.34坪)
※表示金額は本体工事価格(税込)
※2025年現在特別価格適用
※本体工事以外(その他付帯工事)は別途費用となります。

プランD

価格 2,640 万円 (税込)~

間取りタイプ:
3LDK
1階床面積:
50.16㎡
2階床面積:
50.16㎡
合計面積:
100.32㎡ (30.34坪)
※表示金額は本体工事価格(税込)
※2025年現在特別価格適用
※本体工事以外(その他付帯工事)は別途費用となります。

プランE

価格 2,640 万円 (税込)~

間取りタイプ:
3LDK
1階床面積:
50.16㎡
2階床面積:
50.16㎡
合計面積:
100.32㎡ (30.34坪)
※表示金額は本体工事価格(税込)
※2025年現在特別価格適用
※本体工事以外(その他付帯工事)は別途費用となります。

プランF

価格 2,640 万円 (税込)~

間取りタイプ:
3LDK
1階床面積:
50.16㎡
2階床面積:
50.16㎡
合計面積:
100.32㎡ (30.34坪)
※表示金額は本体工事価格(税込)
※2025年現在特別価格適用
※本体工事以外(その他付帯工事)は別途費用となります。

プランG

価格 2,640 万円 (税込)~

間取りタイプ:
3LDK
1階床面積:
50.16㎡
2階床面積:
50.16㎡
合計面積:
100.32㎡ (30.34坪)
※表示金額は本体工事価格(税込)
※2025年現在特別価格適用
※本体工事以外(その他付帯工事)は別途費用となります。

プランH

価格 2,640 万円 (税込)~

間取りタイプ:
3LDK
1階床面積:
50.16㎡
2階床面積:
50.16㎡
合計面積:
100.32㎡ (30.34坪)
※表示金額は本体工事価格(税込)
※2025年現在特別価格適用
※本体工事以外(その他付帯工事)は別途費用となります。

プランI

価格 2,940 万円 (税込)~

間取りタイプ:
3LDK
1階床面積:
55.15㎡
2階床面積:
55.15㎡
合計面積:
110.30㎡ (33.36坪)
※表示金額は本体工事価格(税込)
※2025年現在特別価格適用
※本体工事以外(その他付帯工事)は別途費用となります。

プランJ

価格 3,160 万円 (税込)~

間取りタイプ:
3LDK
1階床面積:
60.14㎡
2階床面積:
60.14㎡
合計面積:
120.28㎡ (36.38坪)
※表示金額は本体工事価格(税込)
※2025年現在特別価格適用
※本体工事以外(その他付帯工事)は別途費用となります。
estimation

性能評価と特徴

価格性能・評価

「コンクリートの家」は、木造や従来のRC住宅と比較しても、高いパフォーマンスを提供します。

項目 木造 「コンクリートの家」 RC
価格
地震に強い
雨水・塩害に強い
間取りの自由度
遮音・防音性能
耐風・耐水・
耐火性能

「コンクリートの家」の特徴とその理由

  • 質問01.
    どうして価格が抑えられるの?
    独自の資材供給ルートを確立し、仕入れコストを大幅に削減。さらに、全体工期を圧倒的に短縮しているからです。「コンクリートの家」は、一般的なRC住宅の1/3~2/3程度の工期でご提供します。
    建て方開始から5~10日でコンクリート躯体が完成するため、人件費を抑え、現実的な価格での提案が可能になりました。
  • 質問02.
    耐震は大丈夫なの?
    工場で生産される高品質なコンクリートは、RC住宅と現場打ちコンクリートの2倍強度のため、ひび割れがありません。
    工法は阪神・淡路大震災でも最も強かったと言われているRC壁式工法を採用しています。
  • 質問03.
    台風や塩害には大丈夫?
    密度が高く、構造に雨水が染み込む度合いが現場打ちのRC住宅と比較して圧倒的に抑えられます。
    そのため躯体の中性化が起こりにくく、耐久性はもちろん、塩害にも強い建物が完成します。
  • 質問04.
    間取りはどれくらい選べるの?
    様々なロケーションに適合する規格プランを取り揃えております。
    もちろん構造計算をし尽くした万全の強さを兼ね備えています。
  • 質問05.
    防音性は高い?
    「コンクリートの家」では特別な施工を行わなくても、標準仕様で遮音性能、防音性能が高いのが特長です。
    1000Hzの音がPCパネルを通して隣の部屋に届くとき、100dBから45dBまで軽減されます。
  • 質問06.
    暴風・水害・火災には強い?
    密実な躯体とそれを支える頑丈な基礎は、大型台風時の横なぐりの風や雨に対してもその強さを発揮します。
    また、構造材自体が耐火性能のため、火災の後でも燃え崩れることがありません。
WARRANTY

保証について

さらに、業界最長35年保証

コンクリートは工場で1枚1枚、徹底した品質管理のもと製造し、しっかりと検品まで行っているため35年保証が可能になりました。現場打ちのコンクリートと違い、天候や職人の技術で品質がばらつくことはありません。

METHOD

安心・安全「コンクリートの家」のWPC工法

工期も早く施行も簡単なため、職人による品質のばらつきがありません。
当社の構造は地震・台風・火災に強く、津波でも流されず、圧倒的な耐久性能があります。

徹底した品質管理のもとに製造された高強度PCパネル

「コンクリートの家」は工場で徹底した品質管理のもとに製造された軽量鉄骨の20倍の強度を誇る高強度PC (プレキャスト鉄筋コンクリート)パネルを、ボルトで接合し箱形の壁式構造に組み建てる工法です。
工場で生産されるPCパネルは、適正な水分量と充分な養生をクリアした高品質なコンクリート。現場打ちコンクリートの2倍、ALCの10倍強い理想のコンクリートです。

工期を飛躍的に圧縮

PCパネルは工場で生産後、現場にてボルトで連結します。精度の均一な建て方作業を行い、2階建の場合は建て方開始から完了まで3~4日の工期になります。
この結果、現場打ちコンクリートの約1/8~1/10にまで工期を短縮することができます。そのため職人さんのコストを抑え、現実的な価格でお客様にご提案することが可能となります。

ADDRESS

アクセス

住所
〒963-8061 福島県郡山市富久山町福原字泉崎21-1F
TEL
0120-726-063
FAX
024−505−4230

お問合せ・資料請求

  • STEP1 入力
  • STEP2 送信
  • STEP3 完了

下記の情報に御記入の上、【入力内容を送信する】ボタンをクリックしてください。折り返し弊社より御連絡させていただきます。
※【必須】は入力必須項目です。

必須
必須
必須



必須
必須
必須

カタログの請求を

任意

【個人情報の取扱いについて】

  • 本フォームからお客様が記入・登録された個人情報は、資料送付・電子メール送信・電話連絡などの目的で利用・保管します。
  • プライバシーポリシーについてはこちらをご覧ください。

資料請求・
お問い合せ

資料請求・
お問い合せ

TEL